Milne Street Townhouses
mount warren park, qld
The proposed development will incorporate twelve (12), two-storey townhouse dwellings and either twenty-four (24) or thirty-two (32) apartment dwellings on the subject site, 48-50 Milne Street, Mount Warren Park. The townhouse dwellings will be situated side-by-side aligned on either side of a 'central street' (driveway) which will act as the primary pedestrian and vehicular access. This 'central street' and low-density townhouse typology will address Milne Street and ensure the development is congruent with the low-density residential scale of the area and the adjoining properties.
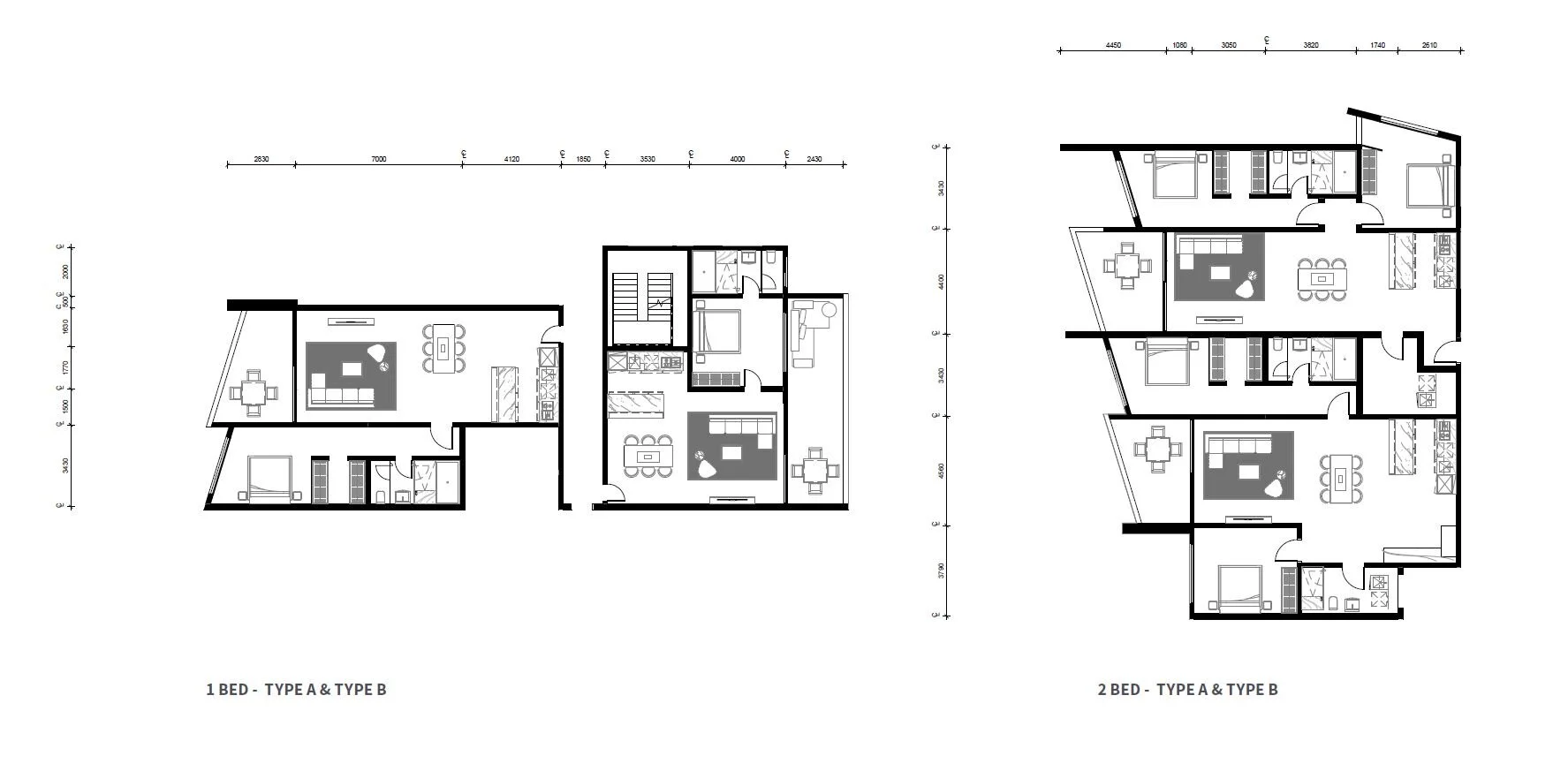
An efficient, single-core apartment building of either 3 or 4 levels will be situated towards the rear of the property and will contain a mix of 1 and 2 bed apartments as well as a semi-sub-terrainian carpark (half level below grade). This building accommodates for a more diverse mix of dwelling types and is situated away from the Milne Street frontage so the existing urban street character is retained. The building takes advantage of the North facing site and through effective screening methods does not have an adverse impact on the privacy of the neighbouring properties.
